2022.12.08 10:39:33

项目:TERRACE 07
面积:185㎡

如何用色彩点缀现简风?既不能杂乱,保留现简风的特性,还要能享受轻奢生活。这套公寓便是设计师给出的答案。

客厅的硬装,是常见的黑白与木地板搭配。置物架、电视柜的摆放井然有序,赋予空间更多的整洁与大气。

设计师用翡翠色沙发与棕色休闲椅点缀,便让客厅不再平庸、充满活力。

设计师根据业主的需求,将餐桌与厨房相接,不仅可以当做用餐区,还能当做休闲吧台,方便且不显拥挤。

客厅与厨房相接的设计,或许会成为年轻人新的生活方式,摩登不羁。

走廊是这套魅力公寓的神秘通道,它没有过多的设计和装饰,但前方的景象却可以吸引你不断向前,打开每间房门。



户外空间位于公寓的C位,简单地搭配几件户外家具,就能在繁忙生活中亲近自然。未来户外空间会成为居家必备吗?


主卧充分利用色彩点缀,诠释由内至外的轻奢感。蓝色系的大床与休闲椅不显突兀,营造身心舒适感。

整体配色遵循合理的深浅比例,个性且不破坏卧室应有的私密宁静。

设计师在次卧选用悬浮床,巧妙地为空间制造出“轻盈感”,从任何角度都不会显得拥挤。


次卧以灰色软装为主体,用绿植来做点缀,营造出轻奢且舒适的氛围。


灰与白,本是最平凡的色彩,但与自然光线的结合好似无形的画笔,在室内共同勾勒克制与平衡。


夕阳落下,放下所有疲倦,跟随光的方向,便可进入甜美的梦乡。

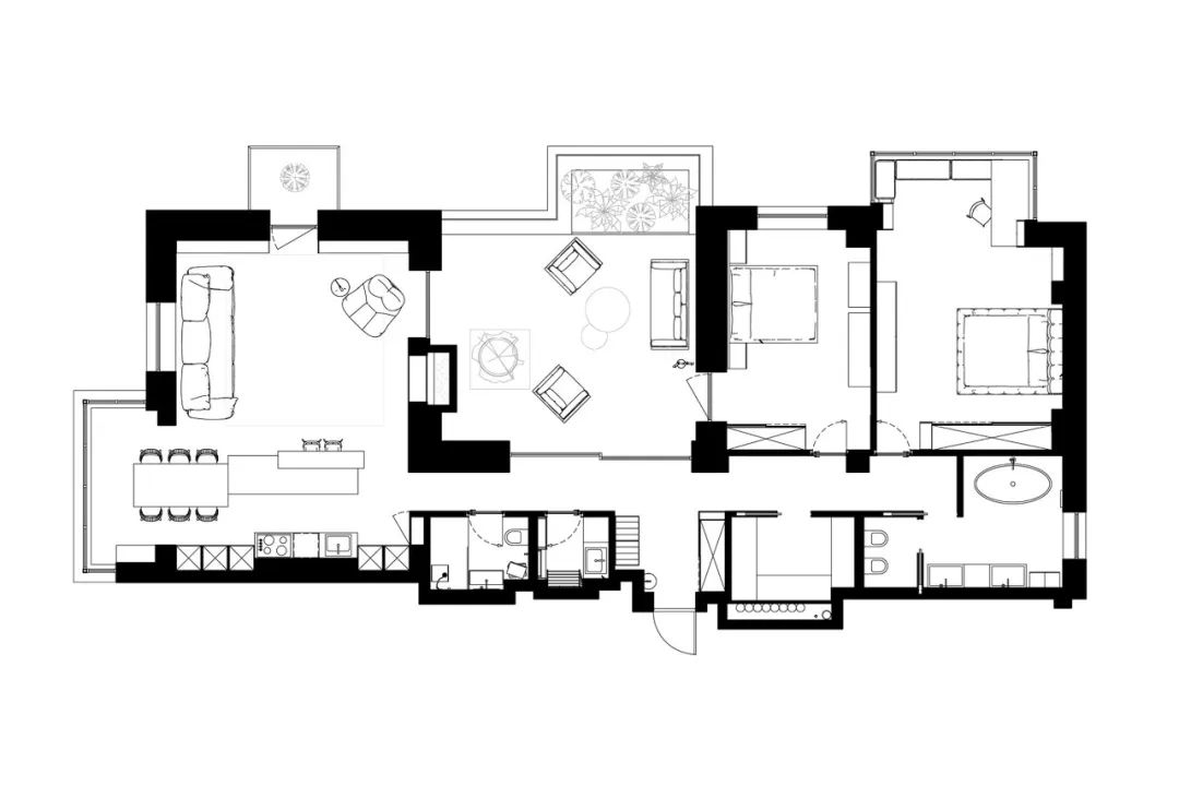
附上平面图,喜欢本期案例的话,记得关注我们哦!
单品推荐
Editor's Picks
01 BAXTER Casablanca沙发

02 BAXTER Nepal休闲椅

03 LAGO Air餐桌

04 LAGO Air书桌

05 GIORGETTI Drive沙发

06 BAXTER Thalatha茶几

07 CIERRE Option床

08 LAGO Fluttua床

买进口家具,选剪刀石头布
咨询可拨打400-820-9220
来源:https://www.shanghaihomeexpo.com/ 意大利家具